Practiques Tema 5 2010 2011 1Q.pdf

Vista previa de texto
GEOMETRIA DESCRIPTIVA II
ET SAB
PRÀCTIQUES
2010-2011
1r. Quadrimestre
Tema 5.- M odelat d’objectes
d’arquitectura mitjançant sòlids
i
elements
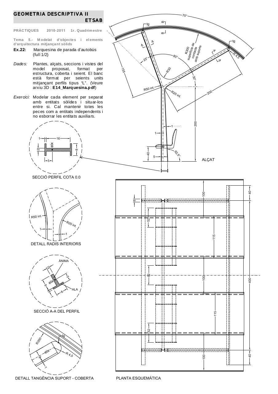
Ex.22:
Marquesina de parada d’autobús
(full 1/2)
Dades:
Plantes, alçats, s eccions i vistes del
model
proposat,
format
per
estructura, coberta i seient. El banc
està format per seients units
mitjançant perfils tipus “L”. (Veure
arxiu 3D : E14_Marquesina.pdf)
Exercici: Modelar cada element per separat
amb entitats sòlides i situar-los
entre si. Cal mantenir totes les
peces com a entitats independents i
no esborrar les entitats auxiliars.
