10 15955 planos muebleria centro entrete arar 23 sep 15 1302.pdf

Vista previa de texto
120
90
F1
100
E
40
120
23
I
275
23
80
80
80
J
J
J
J
19,8
19,8
19,8
19,8
183
23
A1
50
I
F1
80
90
50
A1
40
40
23
C O LEC C IO N AB LES
PLAN O S
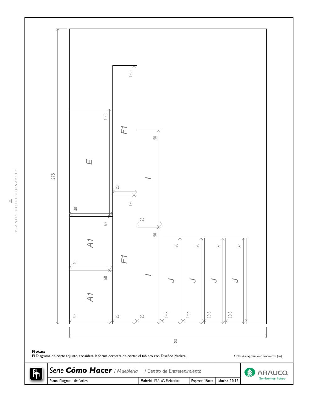
Notas:
El Diagrama de corte adjunto, considera la forma correcta de cortar el tablero con Diseños Madera.
Serie Cómo Hacer / Mueblería
Plano: Diagrama de Cortes
• Medidas expresadas en centímetros (cm).
/ Centro de Entretenimiento
Material: FAPLAC Melamina
Espesor: 15mm
Lámina: 10.12
