10 15955 planos muebleria centro entrete arar 23 sep 15 1302.pdf

Vista previa de texto
37
H
37
H
23
37
H
120
F
23
23
10
183
10
25
42
42
F
C
C
G
B
B1
120
23
23
H
37
23
176
H
37
23
23
H
37
H1
23
176
180
180
23
H1
A
180
40
A
37
50
37
10
D
36
10
50
D
36
40
275
C O LEC C IO N AB LES
PLAN O S
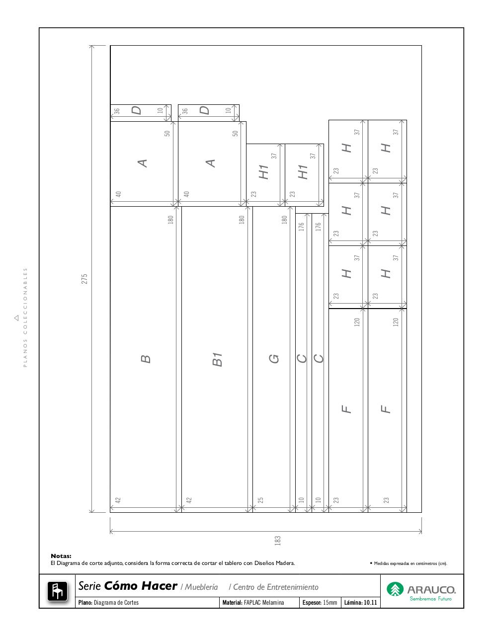
Notas:
El Diagrama de corte adjunto, considera la forma correcta de cortar el tablero con Diseños Madera.
Serie Cómo Hacer / Mueblería
Plano: Diagrama de Cortes
• Medidas expresadas en centímetros (cm).
/ Centro de Entretenimiento
Material: FAPLAC Melamina
Espesor: 15mm
Lámina: 10.11
